-3- Etapes de dessin.
Règles d'utilisation :
-1- En général
- Vous devez dans un premier temps dessiner sur le plan de face !
- Vous devez penser à raisonner en millimètres. C'est à dire, quand les dimension sont exprimés en cm, les convertir en mm.
- Chaque trait / arc / cercle, doit être côté (mesuré) et la côte doit être posé à une place qui ne gène pas la compréhension du dessin.

- Quand l'esquisse 2D est finie, il faut ajouter la matière. Attention à l'épaisseur...
Méthode de dessin des murs.
Pour réussir votre dessin, suivez les vidéos vous présentant les fonctions de base de solidworks, dans la partie ressources.
-1- Cadre / Mur
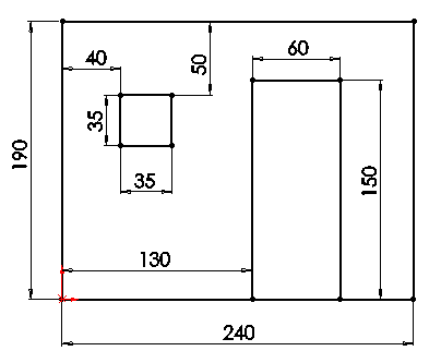
- Dessinez le rectangle des dimensions d'encombrement de votre morceau de mur. (longueur et largeur maximale)
exemple : (ne pas copier ces dimensions...)
-2- Ouvertures :
- Dessinez les ouvertures (porte et/ou fenêtre)

-3- Méthodes d'assemblages :
- Dessinez les encoches sur le côté de votre cloison pour assemblez la face1 avec la face2

- 4 - Faites valider votre dessin par les architectes et le professeur.